Bahasa Indonesia
|
English
 
   
 
 
 

25-05-2012
 
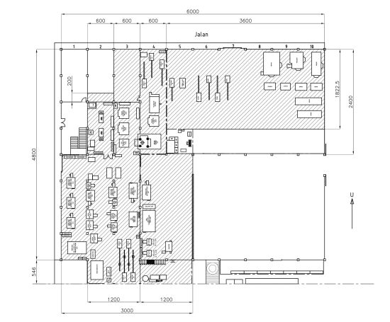
Perluasan area kerja di workshop kami
 
 
 

Baru-baru ini kami telah melakukan perluasan area workshop menjadi seluas 2000m2. Perluasan area kerja yang lebih dari dua kali lipat ini (sebelumnya adalah 800m2) dilakukan seiring dengan peningkatan kapasitas produksi dan penambahan permesinan serta peralatan QC.

Perluasan yang dilakukan adalah:

  • Perluasan area kerja mesin untuk 45 unit mesin CNC yang saat ini kami operasikan.
  • Perluasan area kerja Bench Work dan Finishing.
  • Perluasan ruang QA/QC, area ruang kerja yang tertutup dan dilengkapi pengatur suhu ruangan.

Perluasan area kerja ini bertujuan untuk akan memperbaiki flow kerja, sehingga efisiensi dan efektifitas kerja menjadi lebih baik.

 
 
 
 
 
 
 
 
 
 
Home | News | About Us | Quality Management | Performance | Machinery | Recruitment | Links | Contacts YouTube    Facebook    Twitter
Copyright Notice | Privacy Policy | Disclaimer
Copyright © 2009-2026 Pudak Scientific. All Rights Reserved. Developed by it works! studios